Här kommer planlösningen på vårt blivande hus

.

Övervåning
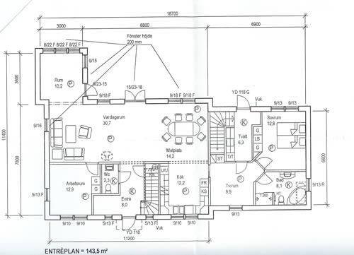
Entreplan
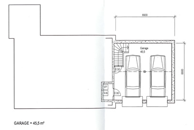
Garage i källarplan